


Listing Courtesy of:
STELLAR / Coldwell Banker Realty / Gino Santilli - Contact: 813-253-2444
STELLAR / Coldwell Banker Realty / Gino Santilli - Contact: 813-253-2444 1230 N Chestnut Road Lakeland, FL 33805
Active (8 Days)
$399,999 (USD)
MLS #:
TB8468855
TB8468855
Taxes
$468(2025)
$468(2025)
Lot Size
0.39 acres
0.39 acres
Type
Mfghome
Mfghome
Year Built
2026
2026
County
Polk County
Polk County
Listed By
Gino Santilli, Coldwell Banker Realty, Contact: 813-253-2444
Source
STELLAR
Last checked Feb 4 2026 at 3:09 AM GMT+0000
STELLAR
Last checked Feb 4 2026 at 3:09 AM GMT+0000
Bathroom Details
- Full Bathrooms: 2
Interior Features
- Unfurnished
- Other
- Appliances: Dishwasher
- Appliances: Washer
- Open Floorplan
- Appliances: Microwave
- Appliances: Dryer
- Appliances: Exhaust Fan
- Appliances: Freezer
- Built-In Features
Subdivision
- None
Property Features
- Foundation: Other
Heating and Cooling
- Other
- Central Air
Flooring
- Luxury Vinyl
Exterior Features
- Other
- Roof: Other
Utility Information
- Utilities: Cable Available, Water Available, Bb/Hs Internet Available, Electricity Available, Phone Available
- Sewer: Septic Tank
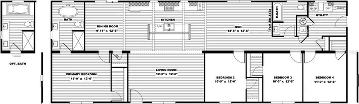
Living Area
- 2,001 sqft
Additional Information: South Tampa | 813-253-2444
Location
Disclaimer: Listings Courtesy of “My Florida Regional MLS DBA Stellar MLS © 2026. IDX information is provided exclusively for consumers personal, non-commercial use and may not be used for any other purpose other than to identify properties consumers may be interested in purchasing. All information provided is deemed reliable but is not guaranteed and should be independently verified. Last Updated: 2/3/26 19:09
Description